廣東星藝裝飾集團廣州有限公司,一起尋找好裝修!
您的當前位置:首頁>裝修案例>建筑師克制的家
分享到 微信
設計經驗:9年
上傳作品:18套
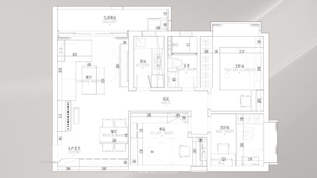
樓盤:愉景雅苑
戶型:三室兩廳
面積:81 m2
設計風格:簡約風格
工程造價:18萬
業主是90后建筑師,作為婚房有自己的要求,簡約而克制,溫馨又有細節,不追求繁復的裝飾。整體色調把控再高亮的咖色調,明亮二溫馨,配合輔助燈光,空間不失層次有簡潔。
售前咨詢
裝修熱線
預約量房
回到頂部
24小時全國服務熱線
(c)Copyright 2021 廣東星藝裝飾集團有限公司廣州分公司 版權所有 粵ICP備12080332號 公安部備案號 44010602004978號