廣東星藝裝飾集團廣州有限公司,一起尋找好裝修!
您的當前位置:首頁>裝修案例>海倫堡陳宅
分享到 微信
設計經驗:7年
上傳作品:12套
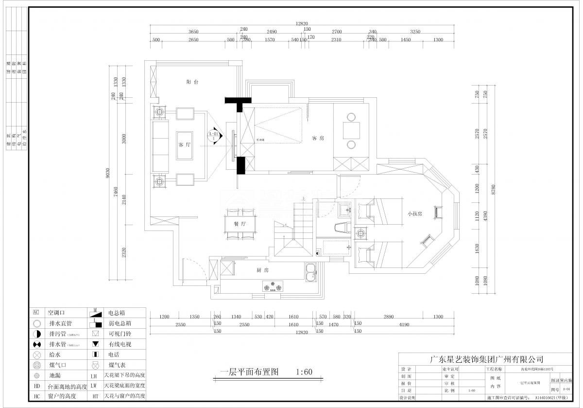
樓盤:海倫春天
戶型:四室兩廳
面積:220 m2
設計風格:北歐風格
工程造價:20萬
設計理念:空間中沒有多的色彩堆砌,清淺的灰和溫潤的木色是空間中的兩種主色調??筒蛷d中的屏風、沙發邊幾、電視背景在色澤上一脈相承,灰色調的沉靜、素雅,反映在磚面,皮質,羊絨材質上所呈現的質感不同,前者彰顯的質樸與后者低調的時尚互揉合,將現代空間的美感重新定義,衍生出新的豐富的視覺效果。從空間區分來看,客餐廳屬開放式格局,而與書房臥室之間以溫潤的木質材料以及透明玻璃組合作為界定,賦予空間以柔和與通透之感.
售前咨詢
裝修熱線
預約量房
回到頂部
24小時全國服務熱線
(c)Copyright 2021 廣東星藝裝飾集團有限公司廣州分公司 版權所有 粵ICP備12080332號 公安部備案號 44010602004978號