廣東星藝裝飾集團廣州有限公司,一起尋找好裝修!
您的當前位置:首頁>裝修案例>白云堡
分享到 微信
設計經驗:11年
上傳作品:937套
樓盤:白云堡
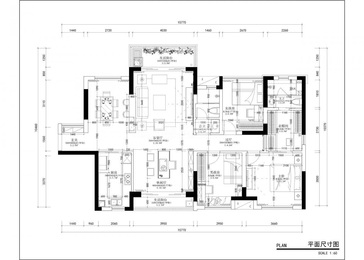
戶型:四室兩廳
面積:160 m2
設計風格:美式風格
工程造價:18萬
業主開廠的,指定要裝美式風格,喜愛美式家具的柔軟,色調的穩健。房子南北通透,格局很好,拿掉一間房用來做餐廳,進一步加大客廳面積,配上茶臺,三五朋友,聚會聊天,裝上投影,周末一家人其樂融融。
售前咨詢
裝修熱線
預約量房
回到頂部
24小時全國服務熱線
(c)Copyright 2021 廣東星藝裝飾集團有限公司廣州分公司 版權所有 粵ICP備12080332號 公安部備案號 44010602004978號