廣東星藝裝飾集團廣州有限公司,一起尋找好裝修!
您的當前位置:首頁>裝修案例>星尚名玥
分享到 微信
設計經驗:11年
上傳作品:937套
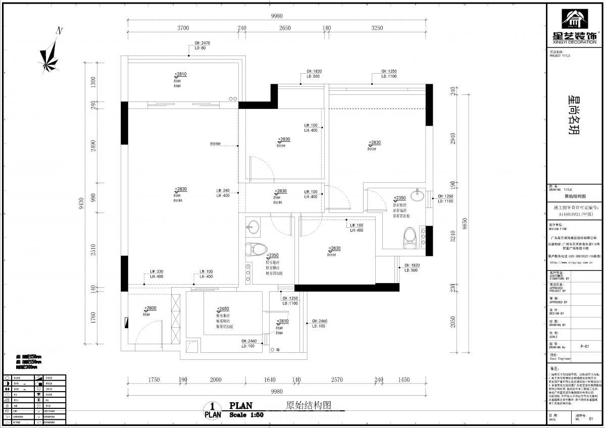
樓盤:星尚名玥
戶型:兩室兩廳
面積:98 m2
設計風格:簡約風格
工程造價:15萬
客戶為二手房改造,前后溝通后改造挺大,每個客戶對于設計的要求都不一樣,做適合客戶的設計,而不是做讓別人評價設計。
售前咨詢
裝修熱線
預約量房
回到頂部
24小時全國服務熱線
(c)Copyright 2021 廣東星藝裝飾集團有限公司廣州分公司 版權所有 粵ICP備12080332號 公安部備案號 44010602004978號